Opis nieruchomości
Mamy przyjemność zaprezentować przestronne 2-pokojowe mieszkanie na sprzedaż w centrum Bielska-Białej w dzielnicy Dolne Przedmieście zaledwie 170 metrów od rynku!
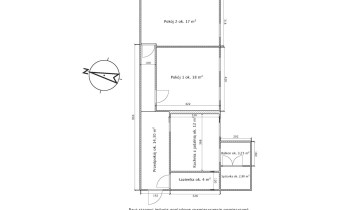
Nieruchomość o powierzchni użytkowej ok. 69 m2 mieści się na drugim piętrze w czteropiętrowej kamienicy, a w jej skład wchodzi:
- przedpokój,
- pokój dzienny,
- sypialnia,
- łazienka,
- kuchnia z jadalnią,
- spiżarka,
- balkon!
Do mieszkania przynależy również piwnica o powierzchni ok. 2 m2 oraz komórka lokatorska.
Kuchnia została wyremontowana 2 lata temu. Z tego pomieszczenia mamy wyjście na balkon ze spiżarnią.
Wszystkie okna i balkon znajdują się od strony dziedzińca, gdzie mamy parking dla mieszkańców. Stąd mamy widok na drzewa oraz Zamek Sułkowskich.
Plac przy kamienicy zamykany jest bramą na pilota dzięki czemu zagwarantowana jest przestrzeń do parkowania wyłącznie dla mieszkańców.
Całe mieszkanie ogrzewane jest poprzez piec 2-funkcyjny.
Ogromnym atutem tego mieszkania jest lokalizacja.
Położone w centrum Bielska-Białej gwarantuje szybki dostęp do najważniejszych udogodnień takich jak przystanki komunikacji miejskiej, sklepy, szkoły, przedszkola, kawiarnie, targowisko, park im. Juliusza Słowackiego, rynek, Galeria Sfera i wiele innych!
W najbliższej okolicy znajdziemy między innymi:
- sklep - 25 m,
- rynek - 170 m,
- przedszkole - 250 m,
- szkoła podstawowa - 270 m,
- przystanek autobusowy - 280 m,
- Park Słowackiego - 550 m,
- centrum handlowe Sfera - 600 m.
Czynsz do spółdzielni: 489 zł/1 os.
Opłaty według liczników: gaz, prąd.
Więcej zdjęć dostępnych na www.lukowiczniruchomosci.pl
Zapraszamy do kontaktu!
Nota prawna
Opis oferty zawarty na stronie internetowej sporządzany jest na podstawie oględzin nieruchomości oraz informacji uzyskanych od właściciela, może podlegać aktualizacji i nie stanowi oferty określonej w art. 66 i następnych K.C.Szczegóły



