Opis nieruchomości
Nieruchomość usytuowana jest tuż przy drodze wojewódzkiej nr 945 prowadzącej z Żywca w kierunku przejścia granicznego ze Słowacją w Korbielowie. Od centrum Żywca dzieli ją około 7 km, natomiast od Korbielowa ok. 11 km. Położenie sprzyja prowadzeniu działalności związanej z turystyką i usługami – bliskość gór i terenów wypoczynkowych to duży atut tej lokalizacji.
Budynek znajduje się na działce o powierzchni 31 arów, jest częściowo podpiwniczony i został doprowadzony do stanu surowego zamkniętego.
Zestawienie pomieszczeń:
Część główna:
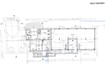
Parter:
- komunikacja,
- dwie toalety,
- 3 pomieszczenia do dowolnej aranżacji,
- klatka schodowa.
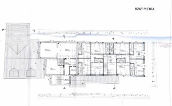
Piętro:
- 4 pomieszczenia do własnej adaptacji.
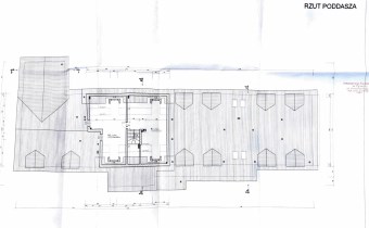
Poddasze:
- 2 pomieszczenia do własnej adaptacji.
Część mieszkalna:
- korytarz,
- osiem pokoi, każdy wyposażony w prywatną łazienkę,
- klatka schodowa.
Skrzydło budynku/część otwarta:
- przestronna sala o powierzchni 182,82 m², znakomicie doświetlona dzięki dużym przeszkleniom i ekspozycji na północ oraz południe.
Dodatkowo dostępny jest projekt rozbudowy obiektu o strefę rekreacyjną obejmującą basen, saunę, szatnie i zaplecze sanitarne – łączna powierzchnia planowanej części to ok. 125 m².
Od frontu teren ogrodzony jest murem z elementami kutymi, natomiast pozostałe granice działki zabezpieczono ogrodzeniem z siatki. Budynek posadowiono w tylnej części parceli, co pozwala na swobodne zagospodarowanie przestrzeni przy wjeździe, np. pod obszerny parking.
Nieruchomość daje szerokie możliwości wykorzystania – może pełnić funkcję pensjonatu, domu wypoczynkowego, ośrodka szkoleniowego, domu opieki, placówki medycznej lub innego obiektu usługowego.
W najbliższej okolicy znajdują się:
- przystanek autobusowy – 600 m,
- sklep Żabka - 800 m,
- restauracja - 1,1 km,
- stacja kolejowa - 1,2 km,
- supermarket Lewiatan - 1,4 km.
Podana cena jest ceną netto.
W celu uzyskania dodatkowych informacji oraz umówienia prezentacji zapraszamy do kontaktu.
Koniecznie obejrzyj wirtualny spacer po tej nieruchomości!
Więcej zdjęć dostępnych na naszej stronie.
Nota prawna
Opis oferty zawarty na stronie internetowej sporządzany jest na podstawie oględzin nieruchomości oraz informacji uzyskanych od właściciela, może podlegać aktualizacji i nie stanowi oferty określonej w art. 66 i następnych K.C.Szczegóły



