Opis nieruchomości
Dom został zaprojektowany w czytelnym i praktycznym układzie — parter pełni funkcję dzienną, natomiast piętro stanowi prywatną strefę sypialnianą, zapewniając domownikom komfort i intymność.
-
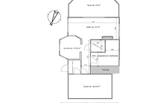
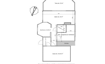
wiatrołap i hol
-
przestronny, jasny salon z częścią jadalnianą i wyjściem na taras
-
w pełni wyposażona kuchnia z zabudową i sprzętem AGD
-
łazienka z prysznicem
-
kotłownia i pomieszczenie gospodarcze
-
garaż w bryle budynku
PIĘTRO:
-
duża sypialnia z garderobą
-
trzy ustawne pokoje z wyjściem na balkony
-
komfortowa łazienka z wanną
-
przestronny korytarz
Standard wykończenia i udogodnienia:
Dom został wykończony z dbałością o detale oraz wyposażony w liczne rozwiązania podnoszące komfort i bezpieczeństwo mieszkańców:
-
klimatyzacja w każdym pokoju
-
rolety antywłamaniowe sterowane pilotem
-
moskitiery we wszystkich oknach
-
ogrzewanie podłogowe w kuchni, łazienkach i holu
-
system alarmowy oraz monitoring (8 kamer)
-
instalacja przygotowana pod agregat prądotwórczy
-
markiza nad tarasem
-
ogrodzenie z bramą automatyczną
Ogrzewanie domu zapewnia piec gazowy dwufunkcyjny oraz kominek z płaszczem wodnym rozprowadzający ciepło do wszystkich pomieszczeń.
Działka i otoczenie:
Duża, w pełni zagospodarowana działka to ogromny atut tej nieruchomości. Znajduje się tu również praktyczny domek gospodarczy – idealny na narzędzia, rowery czy sprzęt ogrodowy.
- Stacja kolejowa - 500 m,
- Sklep Żabka - 750 m,
- Przystanek autobusowy - 800 m,
- Przedszkole - 1 km,
- Szkoła podstawowa - 2,2 km
- Centrum Bielska-Białej - 11 km.
Nota prawna
Opis oferty zawarty na stronie internetowej sporządzany jest na podstawie oględzin nieruchomości oraz informacji uzyskanych od właściciela, może podlegać aktualizacji i nie stanowi oferty określonej w art. 66 i następnych K.C.Szczegóły



