Opis nieruchomości
REZERWACJA
Mamy przyjemność zaprezentować przestronne 2-pokojowe mieszkanie na sprzedaż w centrum Bielska-Białej w dzielnicy Dolne Przedmieście zaledwie 170 metrów od rynku!
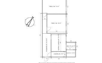
Nieruchomość o powierzchni użytkowej ok. 69 m2 mieści się na drugim piętrze w czteropiętrowej kamienicy, a w jej skład wchodzi:
- przedpokój,
- pokój dzienny,
- sypialnia,
- łazienka,
- kuchnia z jadalnią,
- spiżarka,
- balkon!
Mieszkanie w wysokim standardzie, nie wymagające żadnych nakładów finansowych i jest gotowe do wprowadzenia.
Do mieszkania przynależy również piwnica o powierzchni ok. 2 m2 oraz komórka lokatorska.
Kuchnia została wyremontowana 3 lata temu. Z tego pomieszczenia mamy wyjście na balkon ze spiżarnią.
Wszystkie okna i balkon znajdują się od strony dziedzińca, gdzie mamy parking dla mieszkańców. Stąd mamy widok na drzewa oraz Zamek Sułkowskich.
Plac przy kamienicy zamykany jest bramą na pilota dzięki czemu zagwarantowana jest przestrzeń do parkowania wyłącznie dla mieszkańców.
Całe mieszkanie ogrzewane jest poprzez piec 2-funkcyjny.
Ogromnym atutem tego mieszkania jest lokalizacja.
Położone w centrum Bielska-Białej gwarantuje szybki dostęp do najważniejszych udogodnień takich jak przystanki komunikacji miejskiej, sklepy, szkoły, przedszkola, kawiarnie, targowisko, park im. Juliusza Słowackiego, rynek, Galeria Sfera i wiele innych!
To idealna propozycja dla osób ceniących miejski styl życia lub jako pewna inwestycja pod wynajem (krótko- lub długoterminowy).
W najbliższej okolicy znajdziemy między innymi:
- sklep - 25 m,
- rynek - 170 m,
- przedszkole - 250 m,
- szkoła podstawowa - 270 m,
- przystanek autobusowy - 280 m,
- Park Słowackiego - 550 m,
- centrum handlowe Sfera - 600 m.
Czynsz do zarządcy: 425 zł/1 os.
497 zł/2 os.
569 zł/3 os.
Opłaty według liczników: gaz, prąd.
Zapraszamy do kontaktu!
Nota prawna
Opis oferty zawarty na stronie internetowej sporządzany jest na podstawie oględzin nieruchomości oraz informacji uzyskanych od właściciela, może podlegać aktualizacji i nie stanowi oferty określonej w art. 66 i następnych K.C.Szczegóły



