Opis nieruchomości
Budynek w stanie surowym zamkniętym o powierzchni około 778 m2 znajduje się na 31-arowej działce i jest częściowo podpiwniczony.
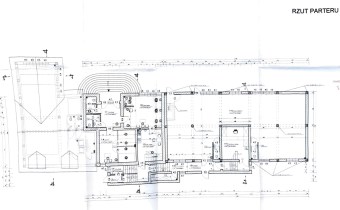
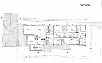
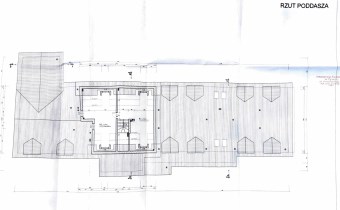
Zestawienie pomieszczeń:
Część główna:
Parter:
- dwie toalety,
- 3 pomieszczenia do własnej aranżacji,
- klatka schodowa.
Piętro:
Poddasze:
Część mieszkalna:
- korytarz,
- 8 pokoi, każdy z własną łazienką,
- klatka schodowa.
Skrzydło budynku/część otwarta:
- obszerna sala o powierzchni 182,82 m2 - wnętrze doskonale doświetlone dzięki rozległym przeszkleniom oraz dwustronnej ekspozycji od strony północnej i południowej.
Dodatkowo przygotowany jest projekt rozbudowy budynku o część rekreacyjną: basen, saunę, szatnie i pomieszczenia sanitarne o powierzchni użytkowej około 125m2.
Od frontu nieruchomości zastosowano ogrodzenie murowane z elementami kutymi, a w pozostałej części siatkę.
Budynek usytuowany jest w części działki, która jest najbardziej oddalona od ulicy, co pozwala na efektywne wykorzystanie przestrzeni od frontu, na przykład na duży parking.
Nieruchomość może zostać przystosowana do różnych celów - jako pensjonat, dom wczasowy, dom seniora, obiekt szkoleniowy, centrum medyczne lub inna działalność usługową.
W najbliższej okolicy znajdują się:
- przystanek autobusowy – 600 m,
- sklep Żabka - 800 m,
- restauracja - 1,1 km,
- stacja kolejowa - 1,2 km,
- supermarket Lewiatan - 1,4 km.
Podana cena jest ceną netto.
W celu uzyskania dodatkowych informacji oraz umówienia prezentacji zapraszamy do kontaktu.
Koniecznie obejrzyj wirtualny spacer po tej nieruchomości!
Więcej zdjęć dostępnych na naszej stronie.
Nota prawna
Opis oferty zawarty na stronie internetowej sporządzany jest na podstawie oględzin nieruchomości oraz informacji uzyskanych od właściciela, może podlegać aktualizacji i nie stanowi oferty określonej w art. 66 i następnych K.C.Szczegóły



