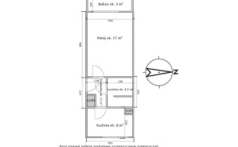
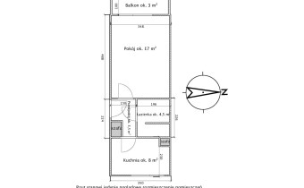
Opis nieruchomości
Nieruchomość o powierzchni 33,97 m2 mieści się na czwartym piętrze w czteropiętrowym bloku, a w jej skład wchodzi:
- pokój dzienny,
- kuchnia,
- łazienka,
- przedpokój,
- balkon,
- piwnica!
W oddzielnej kuchni znajduje się zabudowa kuchenna z piekarnikiem oraz stół jadalniany.
Jest wyposażona również w lodówkę, zlewozmywak i dużo miejsca do przechowywania!
W łazience znajduje się wanna, wc oraz pralka.
Pokój dzienny jest przestronny, jasny z wyjściem na balkon. Usytuowany jest od strony zachodniej.
Wokół bloku jest dostępnych wiele miejsc parkingowych dla mieszkańców.
Ogromnym atutem tego mieszkania jest lokalizacja.
Świetna oferta dla pary, singla lub zakup inwestycyjny dla osób szukających mieszkania w zielonej, spokojnej okolicy z pełną infrastrukturą w zasięgu ręki.
Z tego miejsca mamy również szybki dojazd do centrum miasta oraz na Drogę Ekspresową S1.
W najbliższej okolicy znajdziemy między innymi:
- przedszkole - 160 m,
- sklep - Roll, Biedronka, Paulinka 220 m,
- centrum handlowe z Rossmannem, Pepco, Żabką, piekarnią i kawiarnią - 350 m,
- szkoła podstawowa - 500 m,
- przystanek autobusowy - 650 m,
Ogrzewanie oraz woda miejskie.
Czynsz do spółdzielni: 608 zł.
Opłaty według liczników: prąd, gaz.
Zapraszamy do kontaktu!
Nota prawna
Opis oferty zawarty na stronie internetowej sporządzany jest na podstawie oględzin nieruchomości oraz informacji uzyskanych od właściciela, może podlegać aktualizacji i nie stanowi oferty określonej w art. 66 i następnych K.C.Szczegóły



