

























Opis nieruchomości
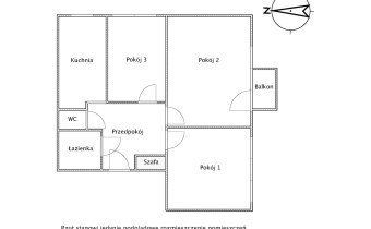
Mieszkanie o powierzchni 58,99 m² zlokalizowane jest na Leszczynach, na pierwszym piętrze w czteropiętrowym bloku, a w jego skład wchodzi:
- przedpokój,
- łazienka,
- wc,
- trzy pokoje,
- kuchnia,
- balkon,
- piwnica.
Nieruchomość przeznaczona jest do odświeżenia.
We wszystkich trzech pokojach na podłodze znajduje się parkiet!
Dużym atutem mieszkania jest jego lokalizacja - usytuowane blisko centrum miasta z bezproblemowym dostępem do wszelkich niezbędnych udogodnień.
Budynek położony jest w zielonej i cichej okolicy. Z okien zapewniony jest widok na podwórko.
W najbliższej okolicy znajdują się:
- plac zabaw - 98 m,
- przystanek autobusowy - 130 m,
- sklep spożywczy - 180 m,
- przedszkole - 270 m,
- szkoła podstawowa - 750 m,
- centrum Bielska-Białej - 2,5 km.
Czynsz do spółdzielni wynosi ok. 751 zł
Czynsz za garaż 199 zł
Opłaty według liczników: gaz, prąd.
Zapraszamy do kontaktu!
Nota prawna
Opis oferty zawarty na stronie internetowej sporządzany jest na podstawie oględzin nieruchomości oraz informacji uzyskanych od właściciela, może podlegać aktualizacji i nie stanowi oferty określonej w art. 66 i następnych K.C.Szczegóły




